Sabbia Beach
Sabbia Beach
Sabbia Beach Condos, located at 730 N Ocean Boulevard in Pompano Beach, FL are now under construction. Brought to you by Fernbrook Florida LLLP Properties, who are bringing modern luxury right to the shores of Pompano Beach! The father-son team of Danny Salvatore and Joseph Salvatore, known for their development in Canada and across the Western Hemisphere, are bringing their 55 combined years of experience right to the shores of South Florida. With world class architectural and design firms in tow, Sabbia Beach is the first “toes in the sand” residence in Pompano Beach in nearly a decade.
Building Amenities
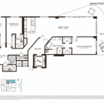
Breathtaking Views from Sabbia Beach This 19-story, 72-unit luxury Sabbia Beach condo building features expansive views of the Atlantic Ocean as well as the Intercostal Waterway. These residences are available in two and three bedroom floor plans as well as exclusive penthouse suites and four lanai residences, all starting in the low $900’s. The Salvatore family has teamed with architect Arquitectonica and Interiors by Steven G. Together, the building team brings a wealth of experience to create this unique vision in a unique location.Each unit features spacious floor plans with floor-to-ceiling glass windows and sliders. Total views in the penthouse properties offer a seamless transition between ocean and Intercostal Waterway views. In the kitchen, all units have built in chef’s islands, and old-world Italian cabinetry. Stone countertops hand selected for Sabbia Beach line the kitchens and bathrooms. Each room is equipped with top of the line Miele kitchen appliances, a sub-zero refrigerator, and full sized laundry rooms. The master bedrooms feature walk-in closets and direct elevator access with double door entryways. Penthouse residences dawn “double high” 22-foot ceilings, while all residences boast over ten foot high ceilings and generous ocean-view balconies. Find a Sabbia Beach condo for sale by connecting with one of our highly experienced realtors today.The Sabbia Beach condo building itself has all of the luxury amenities expected from a Miami beachfront residence with a community atmosphere second to none. Arquitectonica will surround the building with lush, tropical landscaping and a stunning boutique lobby entrance that will be sure to “wow” your guests. The building also provides an exotic pool deck on the ocean complete with an oceanfront jacuzzi. Also overlooking the ocean is a state-of-the-art fitness center with his and her steam rooms, a designated yoga area, and a fully operational spa. To build that community atmosphere everyone is looking for, Sabbia Beach has 3600 square feet of common areas with a bar, kitchen, seating, poker tables, and a big screen TV.As the beach-chic lifestyle of South Florida pushes its way north of Miami, be the first to get in the door in Pompano Beach. Groundbreaking on Sabbia Beach is expected by Fall of 2015 and completion in 2017. Of the 72 available residences, 25% are full, so don’t miss out on this opportunity for sophisticated luxury right on the shores of Pompano beach!
Condo overview
Sabbia Beach current availability











