AIRE Residences
AIRE Residences
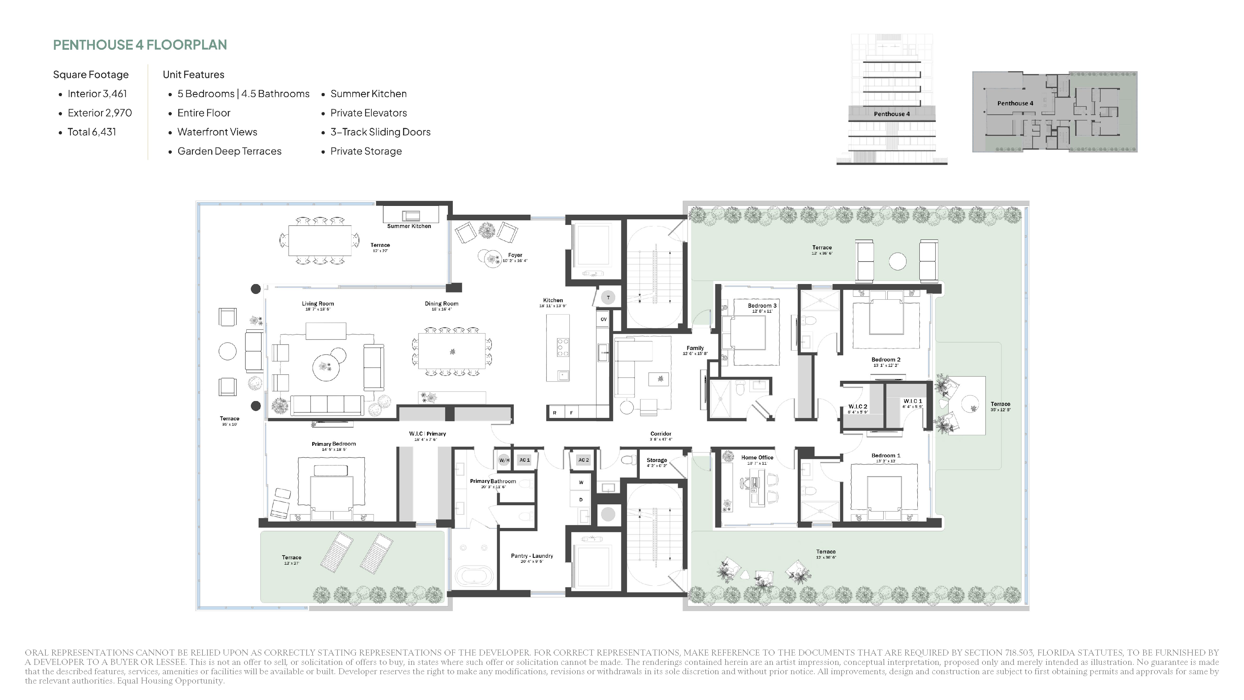
A waterfront condo development site in Bay Harbor Islands has changed hands for $7.5 million, signifying a significant transaction in the area. ABH Developer Group, spearheaded by CEO Alexis Bogomolni, acquired the quarter-acre lot on West Bay Harbor Drive from an affiliate of Indeco Capital Group. This acquisition follows two years of meticulous planning and permit acquisition by the seller, marking a strategic move in the Bay Harbor Islands real estate market.The property was originally designated for the development of AIRE Residences, a seven-story building with eight units totaling 24,000 square feet. Among these residences is the Sunset Penthouse, an expansive 5-bedroom penthouse spanning 6,400 square feet. Positioned as the largest residence at AIRE Residences, the Sunset Penthouse offers unparalleled waterfront living, boasting expansive terraces with breathtaking bay, island, and sunset views. The residence features luxurious amenities, including a private dock accommodating a 35-foot yacht and top-of-the-line amenities and fixtures.AIRE Residences offers a range of luxurious room amenities designed to elevate the resident experience. Each unit features spacious waterfront balconies with summer kitchens, private elevator entrances, and Italian kitchens equipped with Sub-Zero/Wolf appliances. Fully-finished bathrooms with Italian cabinetry and high-end fixtures curated by Design Philosophy, Inc. add to the sophistication of these residences. Additionally, residents enjoy individual private storage, den or home office spaces, and installed flooring and closets upon delivery.
Building Amenities
Residents of AIRE Residences can indulge in an array of building amenities tailored to enhance their lifestyle. The expansive rooftop offers outdoor dining and entertainment areas, a yoga and meditation lawn, and an indoor fitness room. The waterfront pool deck features separate heated and cold pools, while the resident coffee lounge provides serene waterfront views. Private marina availability and two dedicated parking spaces per residence further elevate the living experience, along with electric vehicle charging infrastructure and abundant natural light throughout the structure.In the vibrant neighborhood of Bay Harbor Islands, AIRE Residences offers unmatched walkability and access to amenities. Situated just one block from Kane Concourse, residents enjoy seamless access to retail and culinary centers. Additionally, proximity to the beach and Bal Harbour Shops blends the best of neighborhood living with the vibrance of a beach-loving community, providing endless opportunities for leisure and entertainment.
Condo overview
AIRE Residences current availability






